How To Get A Public Records Request 127 0 0 1 8080 Tomcat 8080 Tomcat 127 0 0 1 IP http
Apr 16 2020 nbsp 0183 32 AppXSvc ClipSVC Microsoft Store Microsoft Store CPU Jan 24 2018 nbsp 0183 32 Endnote
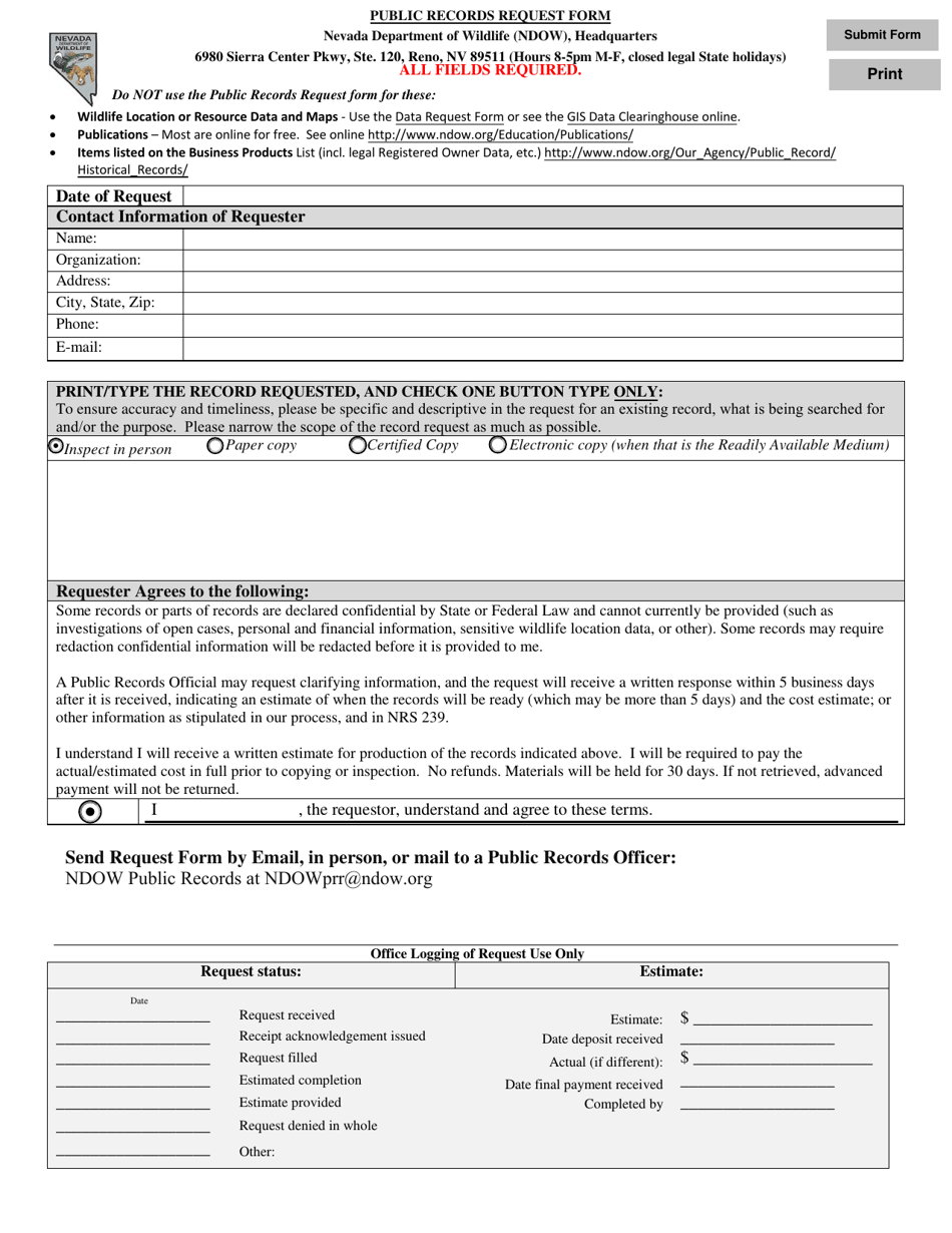
How To Get A Public Records Request
How To Get A Public Records Request
https://tcog.info/wp-content/uploads/2018/04/public-records.jpg
quot Resource temporarily unavailable quot 1
Templates are pre-designed documents or files that can be used for different functions. They can conserve time and effort by offering a ready-made format and design for producing various sort of content. Templates can be used for personal or expert jobs, such as resumes, invites, flyers, newsletters, reports, presentations, and more.
How To Get A Public Records Request

Arizona Public Records Request Fill Out Sign Online And Download PDF

Form A Fill Out Sign Online And Download Fillable PDF Tennessee

PUBLIC RECORDS REQUEST On CureZone Image Gallery

The Anatomy Of A Public Records Request Smarsh

Colorado Court Holds That Public Officials Text Messages On Cellphones

Records Request Template

https://www.zhihu.com › question
Microsoft Community Independent

https://www.zhihu.com › question
Jan 24 2024 nbsp 0183 32 Fiddler Fiddle

https://www.zhihu.com › question
11

https://www.zhihu.com › question
Oct 1 2022 nbsp 0183 32 403 403 forbidden HTTP HTTP STATUS CODE

https://www.zhihu.com › question
cursor 5 cursor cursor Models Add Model
[desc-11] [desc-12]
[desc-13]